Opis nieruchomości
Mieszkanie 63,6m², 3 pokoje + balkon 7m2 + komórka lokatorska 3,7m2 + miejsce parkingowe, winda, 400m do tramwaju, założona księga wieczysta, grunty uregulowane – możliwość zakupu na kredyt.
OFERTA DOSTĘPNA TYLKO W NASZYM BIURZE
Lokalizacja
Mieszkanie zlokalizowane przy ul. Myśliborskiej i Erazma z Zakroczymia, w samym centrum Tarchomina, na 9 piętrze w 10-piętrowym budynku z 1993 roku. W bliskiej odległości pełna infrastruktura handlowo-usługowa (150m do Bazarku przy Światowida , 1km do Galerii Północnej). Cicha i przyjazna okolica, dużo terenów zielonych – 150m do Parku Botewa, 1km do ścieżek spacerowych przy wałach wiślanych. W bliskim sąsiedztwie trzy szkoły podstawowe (do jednej z nich tylko 200m) i liczne przedszkola. Bardzo dobre połączenie komunikacją miejską z centrum Warszawy – przystanek autobusowy 300m, przystanek tramwajowy oddalony zaledwie o 400m, skąd w 14 minut dojedziemy do Metra Młociny.
Mieszkanie
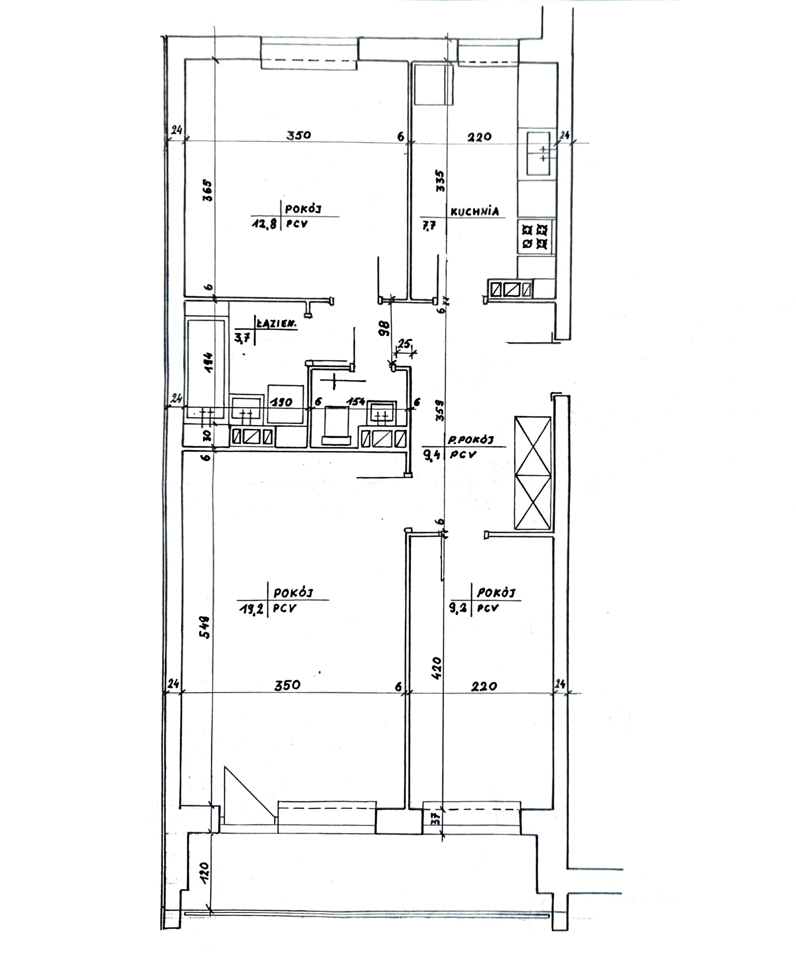
Przestronne, słoneczne, trzypokojowe mieszkanie wykończone w dobrym standardzie. Funkcjonalne i bardzo ustawne, z dużym balkonem, z którego rozpościera się piękny widok na panoramę Warszawy. Mieszkanie w 2020 r. przeszło gruntowny remont. Na powierzchnię 63,6 m2 składają się:
– salon (19,2 m2) z wyjściem na balkon,
– kuchnia (7,7 m2) z pełną zabudową i oknem,
– sypialnia I (13 m2),
– sypialnia II (9,2 m2),
– łazienka (4 m2) z wanną i miejscem na pralkę,
– toaleta (2 m2) z umywalką,
– przedpokój z szafą w zabudowie (9 m2).
Nieruchomość dobrze utrzymana, gotowa do wprowadzenia. Kuchnia w zabudowie wyposażona została we wszystkie niezbędne sprzęty AGD (lodówka/zamrażarka, piekarnik elektryczny z płytą gazową, okap). Bezpośrednio z salonu wyjdziemy na przeszklony balkon – idealny na poranną kawę.
Informacje dodatkowe:
– ekspozycja mieszkania: salon i mniejszy pokój od południowego – wschodu, pokój większy i kuchnia od północnego – zachodu,
– budynek po termomodernizacji, nowa winda w budynku,
– balkon (7 m²) zabudowany przesuwnymi szybami z dodatkowym miejscem do przechowywania,
– komórka lokatorska w piwnicy (3,7 m2),
– schowek wspólny dla dwóch mieszkań na półpiętrze przy lokalu,
– drzwi podwójne, antywłamaniowe.
Osiedle zadbane i dobrze utrzymane, miesięczny czynsz za mieszkanie wynosi 1090 zł. (w tej kwocie zawarte zostały zaliczki na ogrzewanie, wodę i fundusz remontowy). Na terenie osiedla znajduje się parking społeczny, na którym właściciele mają przypisane prywatne miejsce parkingowe, które mogą odstąpić nowym nabywcom gratis (opłata za korzystanie z miejsca jedynie 100zł/mies.).
Niewątpliwym atutem mieszkania jest duża piwnica (3,7 m2) dodatkowo płatna 15 000zł.
W cenie nieruchomości pozostaje w pełni wyposażona kuchnia i wszystkie stałe elementy zabudowy.
Mieszkanie wyposażone i gotowe do zamieszkania.
Stan prawny: odrębna własność z założoną księgą wieczystą, grunty uregulowane, brak obciążeń hipoteki.
Cena mieszkania wraz z piwnicą i miejscem postojowym : 810 000 PLN.
Zapraszamy serdecznie na prezentację nieruchomości.
Nr oferty BE 359
Bartłomiej Pawelec
Prezentowana oferta nie stanowi oferty handlowej w rozumieniu Kodeksu Cywilnego, lecz ma charakter wyłącznie informacyjny. Dbamy o to, aby informacje dotyczące ofert były rzetelne i zgodne ze stanem rzeczywistym. Informacje te pochodzą od Właścicieli prezentowanych nieruchomości i część z nich nie zawsze da się zweryfikować.































































































































